【Bartley】 Bartley Vue (D19)
Project Details
BARTLEY VUE
(D19 巴特礼)
【North-East Condo】
Pricing From:
2.3.4 BEDROOM AVAILABLE
(X BEDROOM SOLD OUT)
| 3 Bed | 3 Bath |
| 1292 Sqft | $1,683 psf |
99 Years Leasehold 115 Units TOP Jul 2026 Height 16 Storey 2 Bed 3 Bed 4 Bed
In between Two Circle Line MRT Stations, Bartley and Tai Seng MRT! where it is only 5 Mins WALK to Bartley MRT!
Get Rare Unblock Panoramic Views of the City Fringe All Day! Exquisite Exterior Finshings!
One of the Last Plot of Project in this Property Cycle! Assuring Capital Protection and Potential Gains!
Within 1km, there are Maris Stella High School [TOP 19] and Paya Lebar Methodist Girls' School (Primary) [TOP 29]!
LIVE near the MEGA Transformation of Paya Lebar and Bidadari Estate! Building Commercial Business Hubs, Sport Hubs and Brand New Amenities here!
PROJECT DETAILS
| Project Name | Bartley Vue |
|---|---|
|
|
|
Tenure: |
99 Years Leasehold |
TOP: |
Jul 2026 |
Location: |
8 Jalan Bunga Rampai, Singapore 538311 |
Number of Units: |
115 Units |
Building Height: |
16 Storey |
|
No of Facilities: |
20 |
|
Layout Types |
Sqft |
Units |
| 1 Bed | 657 | 13 |
| 2 Bed (P) | 732 | 40 |
| 3 Bed | 947 | 13 |
| 3 Bed (P) | 1044 - 1066 | 27 |
| 4 + Study | 1356 | 14 |
(P) = Premium
LOCATION DETAILS

Why Buyers buy here?
AMENITIES
MRT | School | Supermarket | Mall
BARTLEY MRT (530M AWAY)
TAI SENG MRT (760M AWAY)
East West Line (EWL)
North South Line (NSL)
North East Line (NEL)
Circle Line (CCL)
Downtown Line (DTL)
Thomson-East Coast Line (TEL)
Jurong Region Line (JRL)
Cross Island Line (CRL)
- 1. MARIS STELLA HIGH SCHOOL [TOP 19]
(300M AWAY) - 2. PAYA LEBAR METHODIST GIRLS' SCHOOL (PRIMARY) [TOP 29]
(980M AWAY) - 3. CEDAR PRIMARY SCHOOL
(990M AWAY)
- 1. CANOSSA CATHOLIC PRIMARY SCHOOL
- 2. XINGHUA PRIMARY SCHOOL
- 3. YANGZHENG PRIMARY SCHOOL
- NTUC SUPERMARKET (500M AWAY)
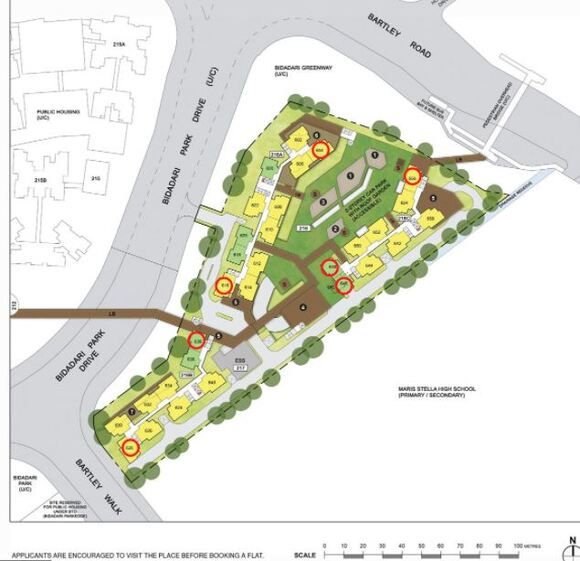
SITE PLAN
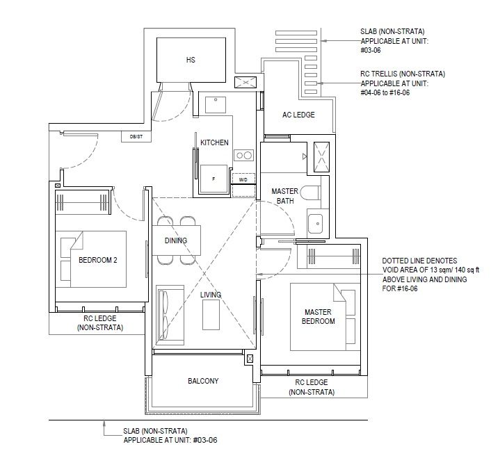
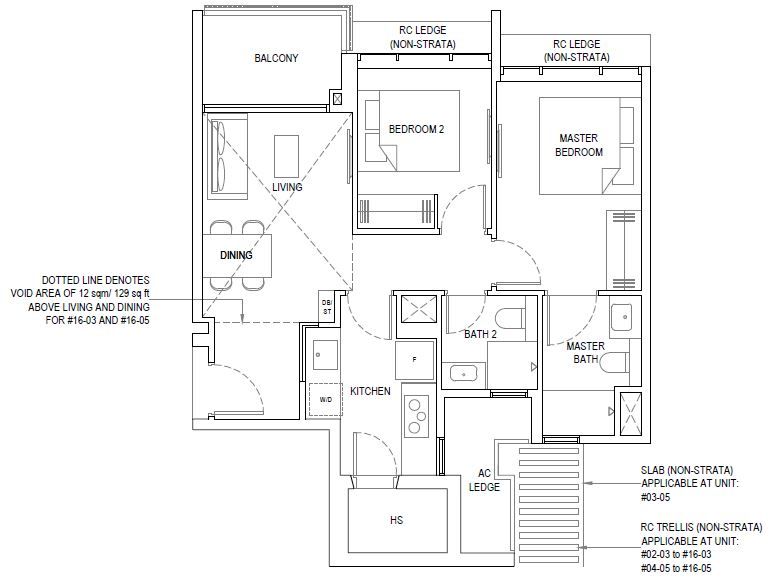
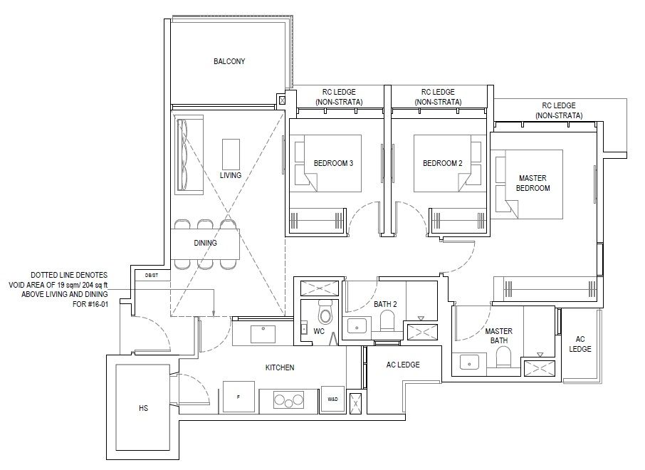
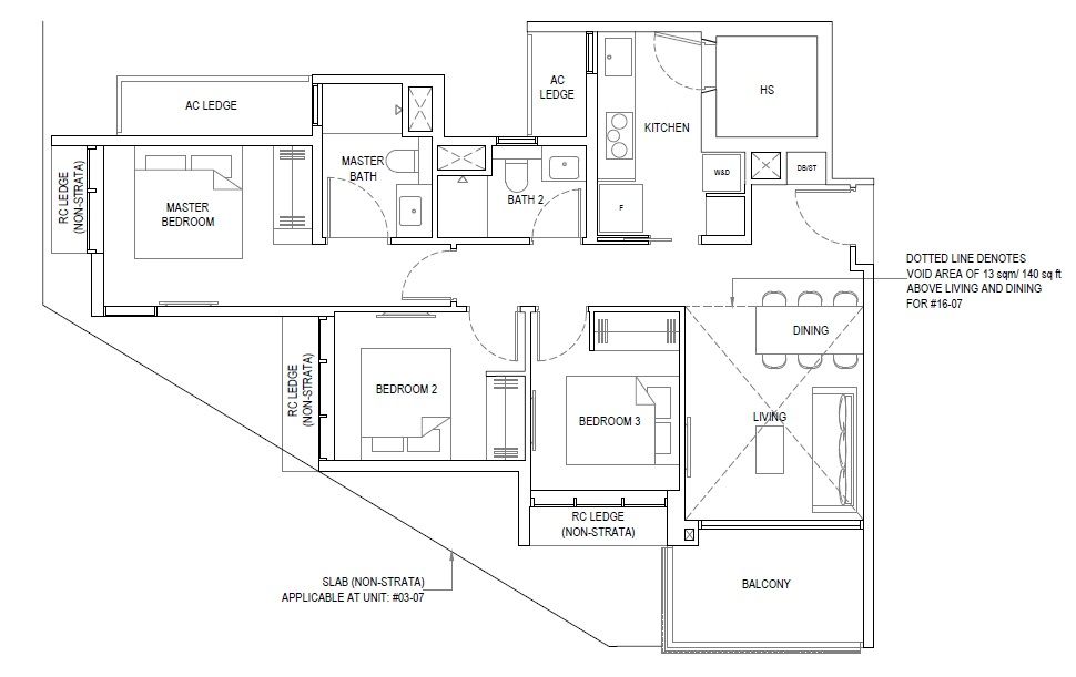
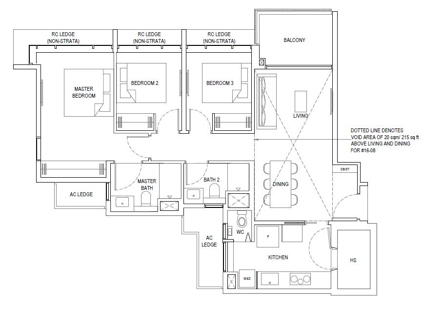
FLOOR PLAN
Type: 2A
| Price: | $ | CALL US | CALL US |
| 1000000 | 0.25 | ||
| 1000000 | 0.75 | ||
| 25% *D.P: | $ | - | |
| 75% Loan: | $ | - | - |
| Tenure: | 30 | ||
| Interest: | 1% | ||
| Monthly: | $ | - | |
| 750000 | 0.01 | ||
| 7500 | 30 | ||
| 225000 | 750000 | ||
| 975000 | 0.00360 | ||
| 3510 | 0.6873 |
you have to Re-Tabulize 3 times for Calculation to be fully correct !!
*All Pricing Are Subjected to Developer Changes & Availability. Contact Us Now.
2A 657 Sqft
Type: 2C
| Price: | $ | 1438000 | 1,438,000 |
| 1438000 | 0.25 | ||
| 1438000 | 0.75 | ||
| 25% *D.P: | $ | 359,500 | |
| 75% Loan: | $ | 1078500 | 1,078,500 |
| Tenure: | 30 | ||
| Interest: | 1% | ||
| Monthly: | $ | 3,469 | |
| 1078500 | 0.01 | ||
| 10785 | 30 | ||
| 323550 | 1078500 | ||
| 1402050 | 0.00360 | ||
| 5047.38 | 0.6873 |
you have to Re-Tabulize 3 times for Calculation to be fully correct !!
*All Pricing Are Subjected to Developer Changes & Availability. Contact Us Now.
2C 732 Sqft
2B 732 Sqft
Type: 3A
| Price: | $ | 1708000 | 1,708,000 |
| 1708000 | 0.25 | ||
| 1708000 | 0.75 | ||
| 25% *D.P: | $ | 427,000 | |
| 75% Loan: | $ | 1281000 | 1,281,000 |
| Tenure: | 30 | ||
| Interest: | 1% | ||
| Monthly: | $ | 4,120 | |
| 1281000 | 0.01 | ||
| 12810 | 30 | ||
| 384300 | 1281000 | ||
| 1665300 | 0.00360 | ||
| 5995.08 | 0.6873 |
you have to Re-Tabulize 3 times for Calculation to be fully correct !!
*All Pricing Are Subjected to Developer Changes & Availability. Contact Us Now.
3A 947 Sqft
Type: 3B
| Price: | $ | 1831000 | 1,831,000 |
| 1831000 | 0.25 | ||
| 1831000 | 0.75 | ||
| 25% *D.P: | $ | 457,750 | |
| 75% Loan: | $ | 1373250 | 1,373,250 |
| Tenure: | 30 | ||
| Interest: | 1% | ||
| Monthly: | $ | 4,417 | |
| 1373250 | 0.01 | ||
| 13732.5 | 30 | ||
| 411975 | 1373250 | ||
| 1785225 | 0.00360 | ||
| 6426.81 | 0.6873 |
you have to Re-Tabulize 3 times for Calculation to be fully correct !!
*All Pricing Are Subjected to Developer Changes & Availability. Contact Us Now.
3B 1044 Sqft
C4A 1066 Sqft
Type: 4A
| Price: | $ | 2339000 | 2,339,000 |
| 2339000 | 0.25 | ||
| 2339000 | 0.75 | ||
| 25% *D.P: | $ | 584,750 | |
| 75% Loan: | $ | 1754250 | 1,754,250 |
| Tenure: | 30 | ||
| Interest: | 1% | ||
| Monthly: | $ | 5,643 | |
| 1754250 | 0.01 | ||
| 17542.5 | 30 | ||
| 526275 | 1754250 | ||
| 2280525 | 0.00360 | ||
| 8209.89 | 0.6873 |
you have to Re-Tabulize 3 times for Calculation to be fully correct !!
*All Pricing Are Subjected to Developer Changes & Availability. Contact Us Now.
4A 1356 Sqft
DIRECT DEVELOPER PRICE
100% Best Price Guarantee ! Early Bird Price ! Exclusive VVIP Preview !
FAST RESPONSE TIME
Immediate Viewing of All Multiples Showflat for Comparison
Free Cash-Flow & Timeline Planning
Lifetime After-sales Services Provided
BEST BUYERS' EXPERIENCE
Have A Ease of Mind Seamless Transition to Your Next New Home
Proven in-House Asset Capital Growth Strategists for Your Current to Future Property's Stages Direction
Call Us At +65-61007118
For Latest Pricing, Brochure & Viewing Arrangement.










































